Cuando nos encargaron diseñar un vestidor de lujo a medida para un cliente en Arabia Saudita, nos emocionó asumir un...
Buscar en blog
Categorías de blogs
Etiquetas de blog
Galería de fotos
No hay imágenes destacadas
Amuebla tu casa con estilo a un precio inmejorableDesde 1930 la misión de Mobilificio Marchese siempre ha sido la misma: Hacemos que tu casa sea única, decorándola con refinadas soluciones de interior design Made in Italy. Elige la calidad de marcas icónicas como Baxter, Cattelan, Flexform, Driade, Lema y muchas más. Calidad al mejor precio. |
Cuando nos encargaron diseñar un vestidor de lujo a medida para un cliente en Arabia Saudita, nos emocionó asumir un...
Recientemente hemos tenido el privilegio de llevar a cabo un importante proyecto de diseño de interiores en Arabia...
Descubra la elegancia de los sofás Baxter en Mobilificio Marchese. Explore diseños italianos icónicos como el...
Un año más, Porada conquistó a todos en la Semana del Diseño de Milán con sus sofisticadas y refinadas propuestas de...
Nos complace presentar la nueva colección 2025 de Baxter, presentada recientemente en el Salón del Mueble de Milán.
No hay imágenes destacadas
Hoy tenemos el placer de contarles el trabajo que realizamos gracias al arquitecto Marcello Alveario en un piso con unas vistas impresionantes sobre el estrecho de Messina.
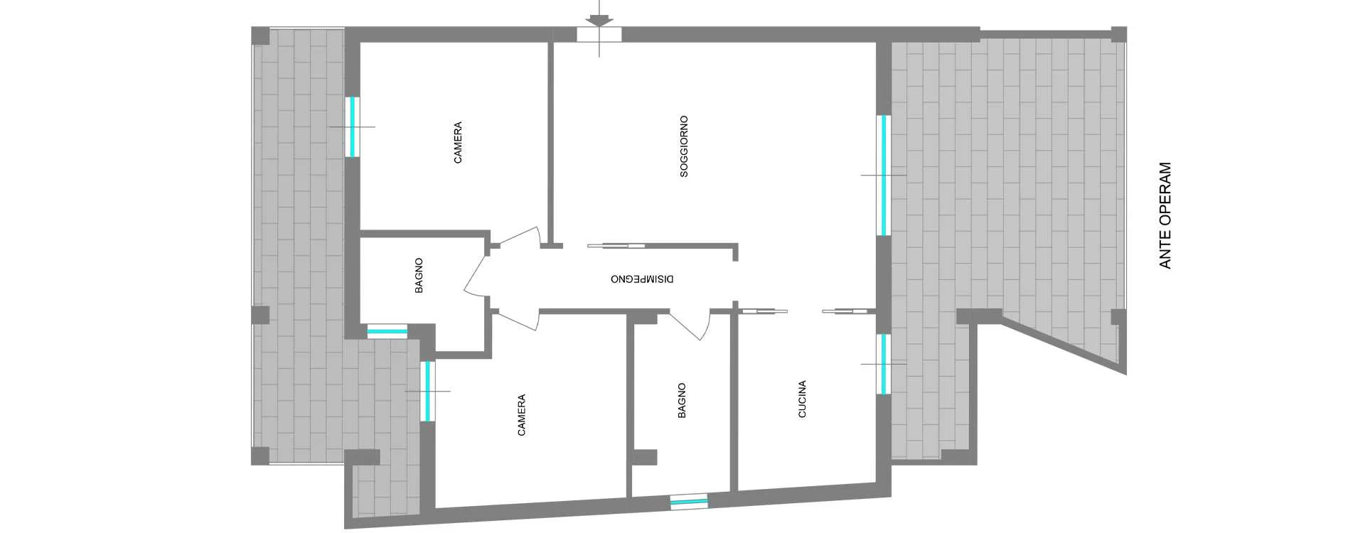
El proyecto comenzó con un análisis del estado del inmueble. "Un salón demasiado pequeño, uno de los dos cuartos de baño demasiado grande en comparación con el tamaño total del piso, un pasillo anticuado además de la cocina sacrificada porque estaba cerrada con dos puertas escamoteables", explica el arquitecto Alveario, que se centró sobre todo en reorganizar los espacios interiores. "Porque sabe que no basta con tener una vista impresionante sobre la desembocadura del Estrecho y una generosa veranda desde la que admirarla si la belleza no está también dentro. Hay que crear espacio donde no existe".


Las fotos del antes y el después muestran claramente la obra, realizada por la empresa Billè Costruzioni. Se demolieron dos tabiques y desaparecieron la cocina y el pasillo.
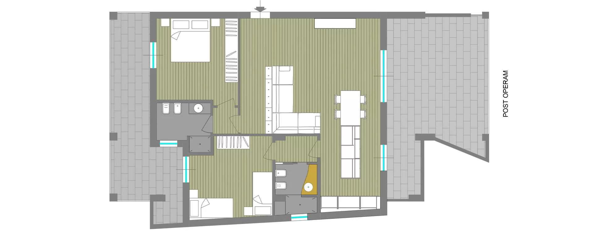
Un cuarto de baño reducido a la mitad pero aún funcional, la entrada a la habitación pequeña reposicionada. El centro de la casa es ahora la sala de estar. Aquí, la entrada está delimitada por la librería Airport de Cattelan: escénica, versátil y funcional, es perfecta como elemento divisorio en una habitación grande gracias a sus estantes de madera.

La cocina diseñada a medida es un proyecto Ak de Arrital, con un acabado lacado mate Grigio ral 7043, el mismo color que encontramos también en algunas de las paredes. Pero hablaremos de ello más adelante. Completa el conjunto la mesa Ice de Altacorte con encimera de roble. El contraste entre la calidez de la madera y la fría intensidad del gris es precioso.

Para la zona de descanso, el arquitecto Marcello Alveario pensó en un gran sofá en L, con un diseño esencial pero que garantizara un confort extremo: la elección recayó en el modelo Barclay de Bodema.
"El resultado final es un espacio abierto delicado, casi minimalista. Suelo de parqué y dos colores en las paredes, un gris (idéntico al acabado de la cocina) que mira desde el mar hacia la tierra y un blanco que mira desde el lado opuesto. Las grandes baldosas oscuras de 120x120 'retenidas' por los efectos luminosos de las tiras de iluminación LED de alta eficiencia sirven de telón de fondo al televisor", explica el arquitecto.

"Todo se enriquece con la explosión de colores de los barcos en regata pintados por el Maestro Siciliano Francesco Toraldo, insertados en los espacios dentro de los marcos de yeso de las paredes. Temas que tienen un significado realmente importante, ya que se trata de la casa de un marinero y la casa, lo sabemos, debe reflejar siempre a quienes viven en ella. "Estos colores que salen de los marcos dieron la idea para la elección de sillas transparentes de diferentes colores alrededor de la mesa del comedor".

Los cuartos de baño, cuidadosamente diseñados también mediante renders de estudio fielmente reproducidos en la realidad, se cubrieron por completo con resina de dos colores diferentes a la que se añadió polvo de Swarovski. Para los suelos, un patchwork y, en parte, pero sólo en el cuarto de baño principal, piedras de lava con polvo de fósforo recubiertas después de resina transparente para un efecto parecido al de la "kriptonita" cuando se apagan las luces.


Así es como nace una casa, así es como los profesionales de la arquitectura y el interiorismo consiguen hacer realidad las peticiones del cliente explotando todo el potencial de una propiedad.
Proyecto: Arch. Marcello Alveario
Contratista: Billè Costruzioni
Mobiliario: Mobilificio Marchese
Foto: Mario Pollino Photography
Nuestros Proyectos: Un lujoso espacio abierto diseñado por Baxter
Luz y sabor mediterráneo: una nueva casa para vivir
Diseñar la casa perfecta: elegancia y estilo
El secreto de un proyecto perfecto: la inspección técnica de nuestros arquitectos
Un proyecto de diseño de interiores en Arabia Saudí: elegancia contemporánea y funcionalidad a medida.