Lorsque nous avons reçu la mission de concevoir un dressing de luxe sur mesure pour un client en Arabie Saoudite,...
Rechercher dans blog
Catégories de blogs
Tags de blog
Galerie de photos
Pas d'images en vedette
Mobilier votre maison avec style, à des prix imbattables.Depuis 1930, la mission de Mobilificio Marchese est toujours la même : nous rendons votre maison unique en la meublant avec des solutions raffinées de décoration intérieure Made In Italy. Choisissez la qualité de marques emblématiques telles que Baxter, Cattelan, Flexform, Driade, Lema et bien d'autres. La qualité au meilleur prix. |
Lorsque nous avons reçu la mission de concevoir un dressing de luxe sur mesure pour un client en Arabie Saoudite,...
Nous avons récemment eu le privilège de réaliser un important projet d'aménagement intérieur en Arabie saoudite, une...
Découvrez l'élégance des canapés Baxter chez Mobilificio Marchese. Explorez les modèles italiens emblématiques tels...
Cette année encore, Porada a séduit tout le monde à la Semaine du design de Milan avec ses propositions de mobilier...
Nous sommes ravis de vous présenter la nouvelle collection 2025 de Baxter, récemment dévoilée au Salone del Mobile de...
Pas d'images en vedette
Aujourd'hui, nous avons le plaisir de vous parler des travaux que nous avons réalisés grâce à l'architecte Marcello Alveario dans un appartement avec une vue imprenable sur le détroit de Messine.
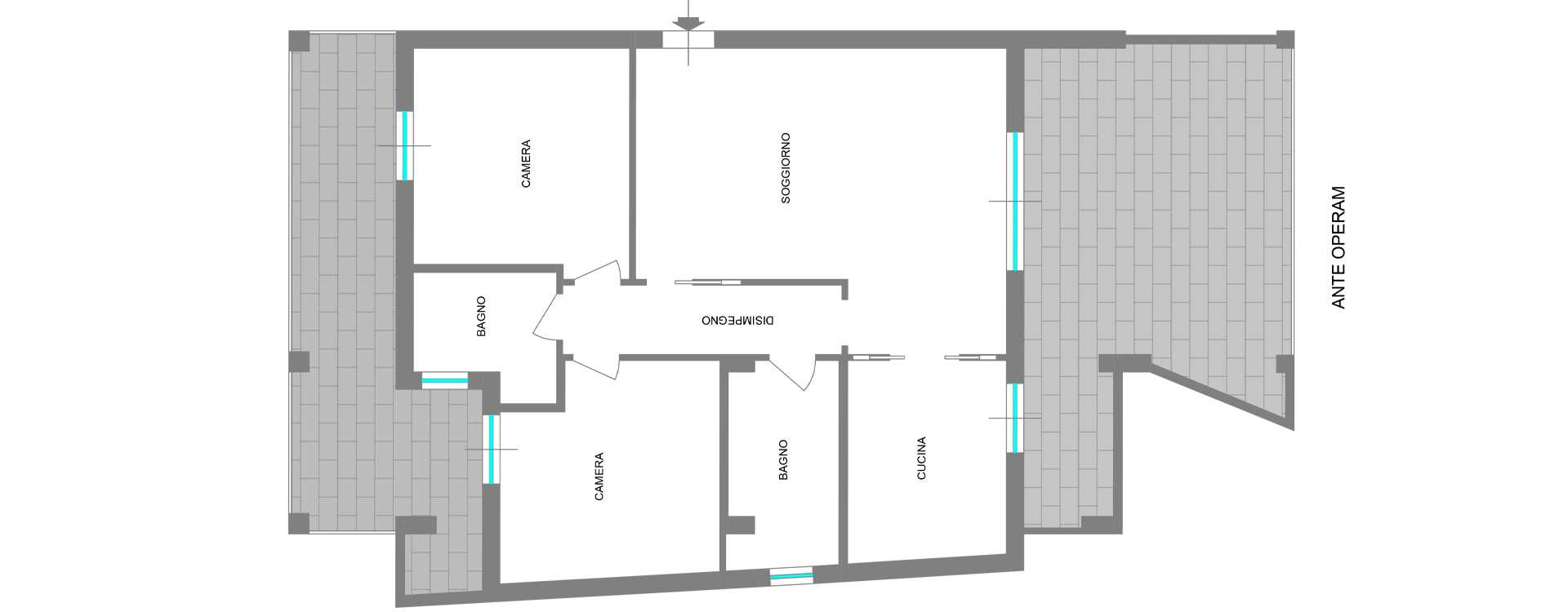
Le projet a commencé par une analyse de l'état des lieux. "Un salon trop petit, une des deux salles de bains trop grande par rapport à la taille globale de l'appartement, un couloir démodé en plus de la cuisine sacrifiée car fermée par deux portes escamotables", explique l'architecte Alveario, qui s'est surtout attaché à réorganiser les espaces intérieurs. "Car on sait qu'il ne suffit pas d'avoir une vue imprenable sur l'embouchure du détroit et une véranda généreuse pour l'admirer si la beauté n'est pas aussi à l'intérieur. Il faut créer de l'espace là où il n'y en a pas".


Les photos ante operam et post operam montrent clairement les travaux réalisés par l'entreprise Billè Costruzioni. Deux cloisons ont été démolies, la cuisine et le couloir ont disparu. Une salle de bains a été réduite de moitié mais reste fonctionnelle, l'entrée de la petite chambre a été repositionnée. Le centre de la maison est désormais l'espace de vie. Ici, l'entrée est délimitée par la bibliothèque Airport de Cattelan : scénique, polyvalente et fonctionnelle, elle est parfaite comme élément de séparation dans une grande pièce grâce à ses étagères en bois.

La cuisine, conçue sur mesure, est un projet Ak d'Arrital, avec une finition laquée mate Grigio ral 7043, la même couleur que l'on retrouve également sur certains murs. Mais nous y reviendrons dans un instant. Le tout est complété par la table Ice d'Altacorte, avec un plateau en chêne. Le contraste entre la chaleur du bois et l'intensité froide du gris est magnifique.


Pour l'espace détente, l'architecte Marcello Alveario a pensé à un grand canapé en L, au design essentiel mais garantissant un confort extrême : le choix s'est porté sur le modèle Barclay de Bodema.
"Le résultat final est un open space délicat, presque minimaliste. Parquet au sol et deux couleurs sur les murs, un gris (identique à la finition de la cuisine) qui regarde de la mer vers la terre et un blanc qui regarde du côté opposé. Les grandes dalles sombres de 120x120 "retenues" par les effets de lumière des bandes d'éclairage LED à haut rendement servent de toile de fond à la télévision", explique l'architecte.

"Tout est enrichi par l'explosion de couleurs des bateaux en régate peints par le maestro sicilien Francesco Toraldo, insérés dans les espaces à l'intérieur des cadres en plâtre sur les murs. Des sujets qui ont une signification très importante, puisqu'il s'agit d'une maison de marin et que la maison, nous le savons, doit toujours être le reflet de ceux qui l'habitent. "Ces couleurs qui sortent des cadres ont donné l'idée du choix des chaises transparentes de différentes couleurs autour de la table à manger".

Les salles de bains, soigneusement conçues également à travers des rendus de studio fidèlement reproduits dans la réalité, ont été entièrement recouvertes de résine de deux couleurs différentes avec l'ajout de poudre Swarovski. Pour les sols, un patchwork et, en partie, mais uniquement dans la salle de bain principale, des pierres de lave avec de la poudre de phosphore puis recouvertes de résine transparente pour un effet "Kryptonite" lorsque les lumières sont éteintes.


C'est ainsi que naît une maison, c'est ainsi que les professionnels de l'architecture et de la décoration d'intérieur parviennent à réaliser les souhaits du client en exploitant toutes les potentialités d'un bien immobilier.
Projet : Arch. Marcello Alveario
Entrepreneur : Billè Costruzioni
Mobilier : Mobilificio Marchese
Photo : Mario Pollino Photography
Nos projets : Un espace ouvert luxueux conçu par Baxter
Lumière et style méditerranéen: une nouvelle maison à vivre
Concevoir la maison parfaite : élégance et style
Le secret d'un projet parfait : le contrôle technique effectué par nos architectes
Un projet d'aménagement intérieur en Arabie saoudite : élégance contemporaine et fonctionnalité sur mesure
Derniers commentaires